|
Startseite
Angebote
Energiepass
Makler?
Widerrufs-belehrung
Kontakt
AGB
Archiv
| |
|
Objekt: |
02 |
Gründstück mit Wohnhaus |
 |
| |
|
|
Grundstücksgröße |
ca. 950m² |
|
Kleinhaus |
ca. 85m² Wohnfläche |
|
|
4 Räume, Küche, Bad, Diele, Terrasse |
|
|
Gasheizung, Kamin |
|
|
bis 2007 Sanierung und Modernisierung |
|
Nebenbauten |
Holzbohlengartenhaus, Schuppen |
|
Baujahr |
geschätzt 1930 |
Reg. Nr. |
22501 |
|
Erschließung im Gebäude |
ortsüblich - Wasser, Abwasser (Grube), Strom, Erdgas,
Breitband |
|
Strasse |
unbefestigt |
|
Energieangaben |
Bedarfsausweis, 115kwh/(m²*a), Erdgas |
|
sonstiges |
bis 2007 saniert und modernisiert, Vollwärmeschutz |
|
Anschrift |
16356 Werneuchen |
|
Kaufpreisangebot |
195.000,00 € |
|
|
|
|
weitere Informationen zum Objekt |
zurück |
weiter |
| |
|
| |
|
 |
|
|
|
|
|
|
Eingangsbereich in Südausrichtung |
|
mit großer überdachter Terrasse |
|
|
|
|
| |
|
|
|
|
| |
|
 |
|
|
|
|
|
|
Strassenansicht, Nordseite |
|
Wohnhaus, Carport |
|
|
|
|
|
|
|
|
|
|
| |
|
 |
|
|
|
|
überdachte Terrasse |
|
Südseite |
|
|
|
|
|
|
|
|
|
|
|
|
| |
|
 |
|
|
|
|
|
|
Randlage |
|
links Grundstück |
|
|
|
|
|
|
|
|
|
|
| |
|
 |
|
|
|
|
|
|
auf dem Grundstück |
|
Blockbohlenhaus und anderes |
|
|
|
|
|
|
|
|
|
|
| |
|
 |
|
|
|
|
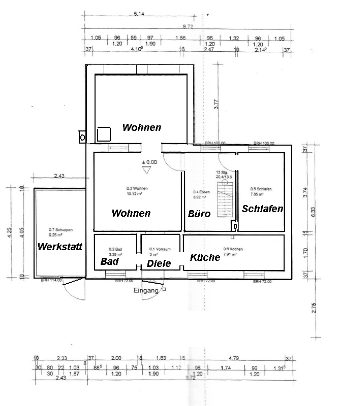
Grundriss Wohnhaus |
|
ohne Terrasse |
|
|
|
|
|
|
|
|
|
vergrößern |
|
|
| |
|
 |
|
|
|
|
Querschnitt Wohnhaus |
|
|
|
|
|
|
|
|
|
vergrößern |
|
|
|
|
| |
|
 |
|
|
|
|
|
|
Lageskizze Grundstück |
|
|
|
|
|
|
|
|
|
|
|
|
| |
|
|
|
|
|
|
|
|
|
|
|
|
|
|
|
|
|
|
|
|
|
|
| |
|
|
|
|
|
|
|
|
|
|
|
|
|
|
|
|
|
|
|
|
|
|
| |
|
|
|
|
|
|
|
|
|
|
|
|
|
|
|
|
|
|
|
|
|
|
| |
|
|
|
|
|
|
|
|
|
|
|
|
|
|
|
|
|
|
|
|
|
|
|